Il Museo di Arte Sacra di Misterbianco
Un prezioso scrigno, immeritatamente poco conosciuto e creato nell’antica cripta sottostante la Chiesa Madre di Misterbianco, in cui sono stati collocati anche reperti provenienti dalla chiesa di Monasterium Album, sepolta dalla lava dell’eruzione dell’Etna del 1669.
Di recente abbiamo “scoperto” e visitato (in colpevole nostro demerito non averlo conosciuto e visitato prima) il Museo di Arte Sacra di Misterbianco, benché lo stesso sia stato inaugurato nel lontano 25 luglio del 2010, grazie all’attività della Fondazione Culturale “Monasterium Album” di Misterbianco e dell’instancabile opera di padre Giovanni Condorelli, parroco della Chiesa Madre di Misterbianco.
Assieme al dottor Mario Guarnera ed accompagnati da padre Condorelli, abbiamo visitato il Museo di Arte Sacra di Misterbianco, ricavandone intense emozioni legate sia a ciò che è contenuto al suo interno sia alle caratteristiche, molto particolari, del luogo in cui è collocata la medesima istituzione.
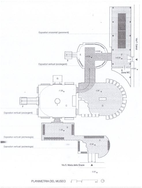
Il Museo è stato realizzato con il contributo finanziario della Regione Siciliana, della Provincia Regionale di Catania e del Comune di Misterbianco, sotto la supervisione della Soprintendenza ai Beni Culturali di Catania e si sviluppa nei locali della cripta sottostante la Chiesa Madre dove era allocato l’antico cimitero della chiesa, così come si evince dalla sottostante planimetria, realizzata da Roberta Rapisarda, nell’ambito delle attività didattiche relative al Tirocinio Formativo Attivo A.A. 2014-2015, dell’Accademia di Belle Arti di Catania, così come quella che descrive gli specifici contenuti dei sei locali del museo.
Alcuni dei tesori che abbiamo potuto ammirare nel museo erano stati, in parte, esposti nelle mostre “Parati Sacri” e “Argenti e Reliquari dei Paesi Etnei” che, realizzate anni or sono, avevano suggerito alla Deputazione della Festa di S. Antonio Abate di Misterbianco l’idea di realizzare un Museo di Arte Sacra, così come poi è avvenuto.
Entrati all’interno del Museo si ha un immediato impatto emotivo con alcuni resti della chiesa di Monasterium Album, sepolti dalla lava nel 1669, valorizzati da una sapiente illuminazione che rende perfettamente la sensazione di essere all’interno di una cripta laddove gli spazi ridotti, in questo caso, agiscono da moltiplicatore delle sensazioni percettive, creando un’atmosfera psicologica molto coinvolgente.
La catalogazione dei reperti esposti nel Museo è stata realizzata dalla CEI – Conferenza Episcopale Italiana – Servizio Informatico – Ufficio Nazionale per i Beni Culturali Ecclesiastici – Diocesi di Catania – Inventario dei Beni Culturali Mobili.
Nella foto che segue si notano alcune parti del campanile della chiesa di Monasterium Album, esposte all’ingresso del Museo.
Il Museo si sviluppa in sei distinti locali che contengono separatamente reperti che sono stati così organizzati: A: Ingresso – B: Archeologia – C: Cappella – D: Ori e Argenti – E: Memorie – F: Paramenti Sacri. La stessa suddivisione è individuabile nella planimetria che segue, realizzata da Roberta Rapisarda.
Prima di essere adibita a Museo di Arte Sacra, la cripta sottostante la Chiesa Madre di Misterbianco, Santa Maria delle Grazie, conteneva il cimitero annesso alla Chiesa, mentre in una delle sale della cripta (esattamente quella corrispondente alla lettera “E” nella precedente planimetria) si trovano le spoglie di sei ecclesiastici.
Fra i tanti preziosi reperti esposti nel Museo, segnaliamo un Crocifisso recuperato dall’antica Monasterium Album (immagine seguente), che è stato datato al XV secolo.
Nelle foto che seguono vengono ritratte alcune delle sale del Museo.
Per saperne di più
Le fotografie di questo articolo sono di Mario Guarnera
clicca e scopri come sostenerci
Autore
Autore

Santi Maria Randazzo vive a Motta Santa Anastasia. Nel 1975 si è laureato in Pedagogia presso l’Istituto Universitario di Magistero di Catania con una tesi sulla delinquenza minorile.
Dopo avere svolto per tre anni attività di assistente volontario presso la Cattedra di Teoria e Storia della Didattica presso l’Istituto Universitario di Magistero di Catania, l’Amministrazione Provinciale di Catania gli ha conferito l’incarico di svolgere una indagine sulla devianza giovanile. Dal 1978 ha lavorato presso i Servizi Sociali del Comune di Catania, prima con il ruolo di Assistente Sociale, poi con quello di Funzionario-Coordinatore di Centro Sociale. Su incarico del Comune di Catania ha collaborato con la Procura per i Minorenni presso il Tribunale per i Minorenni di Catania e con il Provveditorato agli Studi di Catania. Per diversi anni ha fatto parte del Comitato Provinciale per la Prevenzione delle Tossicodipendenze, del Consiglio Scolastico Provinciale e dell’Osservatorio Permanente sulle Problematiche dell’Età Minorile istituito presso l’ex Provveditorato agli Studi di Catania e per conto dello stesso Organismo ha svolto indagini sul lavoro nero minorile in Provincia di Catania.
In passato ha ricoperto ruoli dirigenziali in ambito associativo, sindacale e politico, è stato capo delegazione CGIL-CISL-UIL al Comune di Catania. È stato corrispondente da Motta per il giornale La Sicilia. Da quando è andato in pensione, si dedica con passione allo studio della storia della Sicilia, trascorrendo gran parte del suo tempo presso le più importanti biblioteche dell’Isola. Ha pubblicato due libri in digitale, Motta Santa Anastasia nell’antichità: uno degli ultimi misteri della storia siciliana (2012) e Storia di Motta Santa Anastasia. Dalle antiche origini fino alla prima metà del XV secolo (2013), e per Algra Editore il volume Il ritorno degli Aragonesi in Sicilia (2019). Ha collaborato con diverse riviste: ArcheoMedia, Agorà, Incontri, Sicilia Report, Sikelian e MetroCT. Ama lo sport ed in passato ha praticato rugby e atletica leggera.







